Donnerstag, 29. Juni 2023

Schon bald beginnen die Bauarbeiten

Die Genossenschafterinnen und Genossenschafter der GBC hiessen an der GV vom 12. April 2023 ein Kostendach über CHF 290'000 für den Neubau eines Gemeinschaftsraums an der Mugerenstrasse 5 gut. Da soll nämlich der bestehende, nicht isolierte Gemeinschaftsraum durch einen beheizten Raum ersetzt werden. 

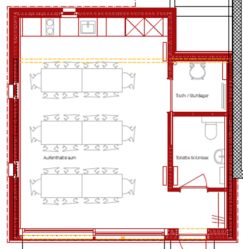
Geplant ist ein Aufenthaltsraum für 30 Personen, eine Küche, ein behindertengerechtes WC sowie ein Abstellraum für Tische und Stühle.

Grundriss Gemeinschaftsraum Mugeren

Mit dem Neubau erfüllt die GBC einen grossen Wunsch der Mieterinnen und Mieter der Liegenschaft Mugerenstrasse 5 nach einem ganzjährig nutzbaren Raum. Gleichzeitig setzt die GBC ihre Strategie fort, den genossenschaftlichen Gedanken zu stärken und die Attraktivität des Wohnraums für Bewohnerinnen und Bewohner zu erhöhen.

Der Pavillon-Neubau ist auf gutem Weg. Die Baueingabe erfolgte Ende April 2023. Einsprachen gab es keine. Als nächstes folgt die Ausschreibung durch die Barmettler Architekten, Cham, das Einholen der Offerten und anschliessend die Auftragsvergabe. Im Herbst soll dann der Baustart erfolgen, mit Fertigstellung Ende Jahr.

Wir freuen uns bereits heute auf die feierliche Einweihung des Pavillons Mugeren.

Tanja Süssmeier
GBC-Geschäftsführerin

to Top